78464 Konstanz.


Meine Notiz

Eckdaten

Art
Einfamilienhaus
Zimmer
2 Zimmer
Anbieter-ID
4138653/010_184

Ausstattungsmerkmale

Allgemein
Garage

Beschreibung

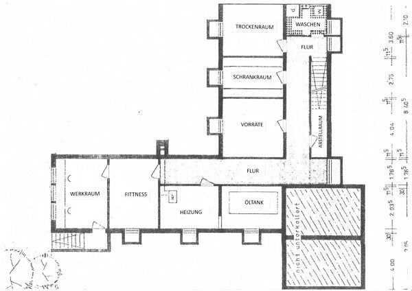
EFH 78464Konstanz Unverbaubare SEESICHT und uneinsehbarer Garten: dieser einzigartige, ebenerdige Bungalow befindet sich in seenaher und absolut ruhiger Lage am Konstanzer Lorettowald, 5 1/2 Zimmer, signifikantes Wohnzimmer, sep. Küche. Wfl. ca. 153 m², voll unterkellert, Grundstück ca. 768 m², 2 Garagen, Bj. 1968, gepflegter Zustand, Dach und Heizung neu. Bezug nach Absprache Sep. 26, direkt vom Eigentümer. Ein ausführliches Exposé mit Bildern und Adresse wird Ihnen gerne an Ihre Postadresse zugeschickt. Kaufpreis 2,55 Mio. Eine außergewöhnliche Gelegenheit für wunderschönes Wohnen in Konstanz. Tel. 0753132490 Tel. 01709353380, maxamsee@t-online.de

Karte