Endenergiebedarf/-verbrauch in kWh je m² und Jahr
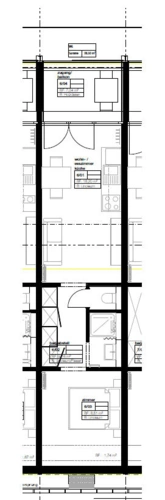
Diese moderne, neu gebaute 2-Zimmer-Wohnung überzeugt durch eine durchdachte Raumaufteilung und hochwertige Ausstattung. Die moderne Einbauküche ist bereits im Mietpreis enthalten. Abgerundet wird das Angebot durch einen kleinen Balkon, der zum Entspannen einlädt.
Die Wohnung befindet sich mitten in der Innenstadt von Singen (Hohentwiel) und bietet damit kurze Wege zu Einkaufsmöglichkeiten, Gastronomie, Ärzten und dem öffentlichen Nahverkehr.
Die im Inserat dargestellten Bilder sind KI-generierte Visualisierungen und zeigen, wie die Wohnung später aussehen kann. Sie dienen zur Veranschaulichung der geplanten Ausstattung und der möglichen Gestaltung.
Die Fertigstellung ist voraussichtlich für Mai 2026 vorgesehen. Bei Interesse oder Fragen senden Sie uns bitte eine Nachricht über das jeweilige Portal. Kaution: 1.890,00 EUR