!!! Wohnbau-Grundstück im Neubaugebiet " Ob dem Korntaler Weg" !!!


Meine Notiz

Eckdaten

Art
Wohngrundstück
Kaufpreis
609.000,00 EUR
verfügbar ab
sofort
Anbieter-ID
196.630

Kosten

Provisionspflichtig
ja
Provision
4,76 % (inkl. MwSt.)
Provision inkl. MwSt.
ja
Hinweis zur Provision
Die Maklercourtage für den Käufer beträgt 4 % aus dem Kaufpreis zuzüglich der gesetzlichen MwSt. somit gesamt 4,76 %.

Detaillierte Informationen

Grundflächenzahl
0.35
Geschossflächenzahl
0.70
Bebaubar nach Bebauungsrichtlinien
B_PLAN

Beschreibung

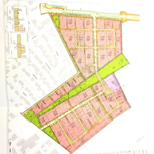
Die Erschließung im Neubaugebiet "Ob dem Korntaler Weg" ist fast abgeschlossen und mit dem Neubau kann sofort begonnen werden. Direkt in sonniger Feldrandlage bieten wir Ihnen dieses schöne Grundstück an. Es hat eine Größe von ca. 420 m² und hat einen fast quadratischen Zuschnitt. Es kann mit einem zweigeschossigen Wohngebäude bebaut werden. Die GRZ beträgt 035 und die GFZ 070. Als Dachform ist ein begrüntes Pult oder Flachdach mit 8° Dachneigung vorgesehen. Weitere Informationen wie den Bebauungsplan und den Texteil dazu können Sie gerne bei uns anforden.

Weitere Angebote unter www.GARANT-IMMO.de

Sonstige Angaben

  • sofort bebaubar
  • Flurstück Nr. 6694

Lage

  • Direkt in sonniger Feldrandlage gelegen.
  • Kindergarten, Schulen und Einkaufsmöglichkeiten am Ort vorhanden.
  • Gute Anbindung an den ÖPNV duch S-Bahn.
  • Kurzer Weg Zur Autobahn A81 und B10 bzw. B295